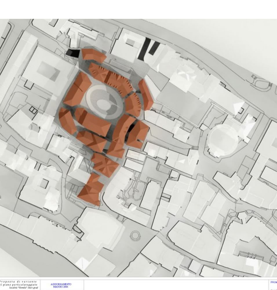
Šta je s projektom Gomila? Taj dio grada je nažalost odavno uništen, pa me zanima šta se misli poduzeti u vesi s tom ružnom “rupom” u središtu grada ?

LPRI / 04.06.2011.

Poštovani,

sigurno Vam je poznato kako je područje Gomile predviđeno za izgradnju kompleksa podzemne garaže te nadzemnih poslovno-stambenih blokova.

Međutim, ono što još uvijek stoji kao prepreka stvarnim radovima jest dovršetak postupka izvlaštenja koji se nakon višegodišnjeg rada i rješavanja imovinsko-pravnih odnosa, sveo na zaista zadnje korake.

Ipak, bez obzira na samo jednu preostalu česticu u rješavanju, bez nje nije moguće investitoru predati cjelinu Gomile za provođenje daljnjih aktivnosti. Ipak, vjerujemo kako će najkasnije tijekom srpnja i ovaj posljednji predmet biti riješen.

Osim izrade projektne dokumentacije, daljnja obveza investitora bit će i provedba arheoloških istraživanja (naravno, pod paskom Konzervatorskog odjela Rijeka), što će biti opsežan i zahtjevan rad s obzirom na površinu i obuhvat.

Odgovorite

Kalendar događanja