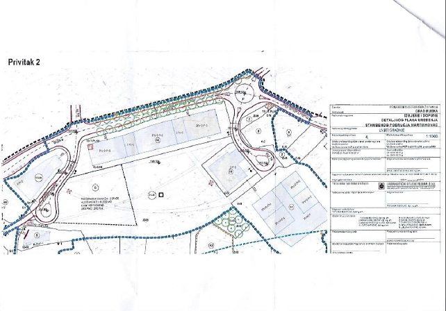
Agencija za društvenu poticajnu stanogradnju Grada Rijeke planira izgradnju POS-ovih stanova u naselju Srdoči, pod radnim nazivom POS Martinkovac II faza. Planirana izgradnja predviđa tri višestambene građevine, katnosti P+5.
Razmatrana lokacija nalazi se na sjevernom dijelu kamionskog terminala na Srdočima, točnije na dijelu katastarskih čestica 1090/1 i 1071/11, k.o. Zamet.
Čestice se nalaze unutar obuhvata Detaljnog plana uređenja stambenog naselja Martinkovac (SN 18/09, 51/13), koji sukladno tome definira položaj, maksimalne gabarite, pristupne ceste i ostale parametre projekta.

Na priloženim prikazima označene su tlocrtne pozicije stambenih zgrada i njihove najveće dopuštene visine. Građevine koje se planiraju graditi u programu POS-a gabaritima će biti znatno manje od aksimalno dopuštenih DPU-om. detalji budućih građevina biti će poznati nakon izrade projektne dokumentacije.
Za sva daljnja pitanja možete se obratiti Agenciji za društveno poticajnu stanogradnju Grada Rijeke.

Podijeli na društvenim mrežama